
Örökpanorámás vendégház borospincével
Legjobb, ha eljön, és megnézi személyesen ezt a remek tájolású, boltíves pincével rendelkező panorámás vendégházat. Az ingatlan felfedezésének végére bele fog szeretni a házba, és környezetébe

A csodás panoráma mindenkit rabul ejt
A Somló-hegy északi oldalában elterülő, csaknem 1 hektáros, teraszos kialakítású terület elhelyezkedésének köszönhetően mindig napsütötte marad. A telken szilva, cseresznye, körte, barack és diófák kerültek telepítésre nemrégiben, így azok nem árnyékolják be az egész területet, ha Ön, mint leendő tulajdonos úgy gondolja, hogy inkább több teret szeretne, kedvére alakíthatja a fák által birtokolt területet. A terület leghátsó részén egy kisebb erdő található, mely megfelelő árnyékot biztosít a nyári meleg napokban.
🛏️ 7
🛁 3
🔲 342m²
Tágas ingatlan, sok lehetőséggel

A több mint 45 nm-es, örökpanorámás, közösségi tér kiválóan alkalmas családi , baráti összejövetelek rendezésére télen-nyáron.

Az emeleti nagy nappali-étkező fűtését a villanykonvektor mellett egy csodás cserépkályha is biztosítja.

Ha már Somló-hegy, akkor jár a házhoz egy saját pince is, megtöltve finom somlói borral. Egészségére!
Mit is kell tudni az ingatlanról?
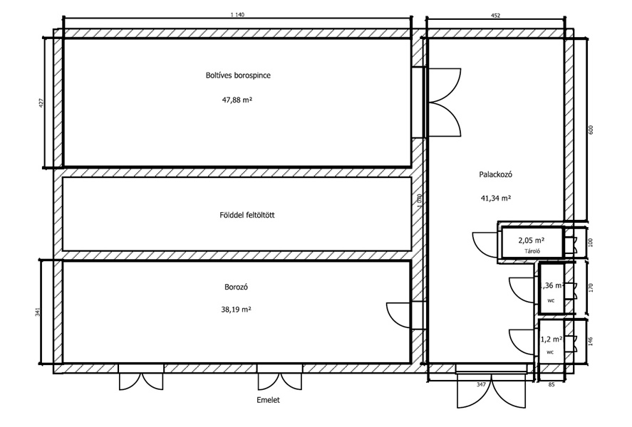
A földszint, emelet, tetőtér tagolású, közepes állapotú, tégla építésű vendégház összesen 6 szoba + nappalival rendelkezik, 3 fürdőszoba és több, különálló illemhely tartozik hozzá. A földszinti részben egy csaknem 50,00 nm-es, borral teli borospince, egy borozó és a borpalackozáshoz szükséges helyiségek, eszközök találhatóak.
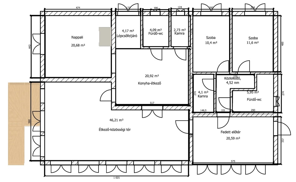
Az emeleten panorámás étkező-közösségi tér, nagyméretű konyha, nappali, -melynek fűtését többek közt egy csodás cserépkályha biztosítja,- fürdő-wc helyezkedik el. Ugyanezen a szinten, a jelenlegi tulajdonos egy új épületrészt épített, mely közvetlenül kapcsolódik a házhoz. Ebben az épületrészben további két szoba és fürdőszoba, kamra található. A főépület tetőterében, normálméretű 3 szoba, fürdő-wc található.
Egy külön elhelyezkedő, 3 részből álló, 180,00 nm-es melléképületben talált helyet a raktár, a műhely. Kis átalakítással ez az épület is alkalmas lehet lakórésznek, mivel mind a vezetékes víz, mind a villany rendelkezésre áll ott.
A remek programokhoz szükséges egy nyári konyha is, ami az épület mögött várja a szakácsokat, vendégeket.
Az épület teljes berendezéssel, így a pincében található kb.50 hektóliternyi fehérborral együtt eladó.
A ház vízellátását saját, 45 m mély, bevizsgált minőségű fúrt kút biztosítja, a szennyvíz tárolásáról zárt derítő gondoskodik.
Minden épületben 3 fázis, 380 V eletromos áram található.
A csaknem 1 hektáros, zártkertnek minősített terület 5 hrsz-on található, melynek nagyobbik részét egy vállalkozás birtokolja. Ezen oknál kifolyólag vétel esetén ÁFA fizetési kötelezettség merülhet fel.
Alaprajz-pince

Alaprajz-földszint

Alaprajz-tetőtér

Alaprajz-melléképület

Mégis, mennyiért lehet az Öné ez az ingatlan?

Ahogy feljebb írtuk, az ingatlan több helyrajzi számon helyezkedik el melyből kettő egy vállalkozás tulajdonában áll.
Ezek irányára:133,0 m Ft+ ÁFA, amennyiben ÁFA fizetési kötelezettség lép fel.
A magántulajdonban található további részek irányára: 18,0 m Ft. Az ingatlan teljes irányára így 151,0 m Ft+ ÁFA.
Szeretné személyesen is megtekinteni az ingatlant?
Hívjon még ma: 0630455-8044
Takács László Attila
Telefon: +36-30-4558044
E-mail: takacs.laszlo.attila.71@gmail.com
Hétfő - Péntek: 08:00 - 18:00
